中建翰林雅境在户型设计方面,主推建面约93-165㎡户型,一梯两户,南北通透,每一户都拥有超大宽景阳台、大面宽、大开间,南北通透,非常注重业主的生活质量和舒适度。

建面约93㎡户型堪称项目王炸,双阳台双卫独立玄关、完全南北通透、独立主卧套房设计、U型厨房预留双开门冰箱位置,加上超高得房率,几乎等同于市面上的105㎡户型。

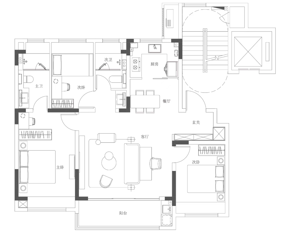
建面约98㎡户型是三房两厅两卫设计,三开间朝南,预留入户玄关;南向双阳台开间约6.3米,采光面较大;主卧套房设计,私密性较强。

建面约110㎡户型是三房两厅两卫设计,三开间朝南,U型厨房,实用性较强,客厅连接南向阳台,视野较为开阔。

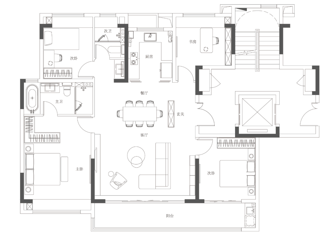
建面约143㎡户型是四房两厅两卫设计,与165户型相似,约14米采光面宽、约6*7米奢阔大方厅,约9米超大跑道阳台,更适合首次改善或者是二胎家庭,需求都能满足。

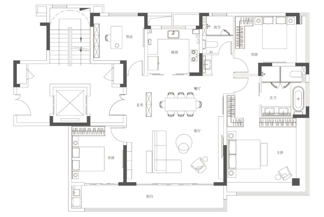
建面约165㎡户型均为边户设计,拥有约17米南向大面宽、约10米观景跑道阳台、约42平宽阔横厅、主卧配置L型270°转角环幕飘窗,尽显气派的同时,还可以将窗外美景尽揽眼底。
项目在装修标准上超下功夫,基础装修竟然配置了威能地暖、百朗新风、海尔中央空调三大件;客餐厅地面采用地砖通铺;厨房配置方太油烟机/灶具;五金件采用摩恩等一线品牌。
想要了解更多楼盘详情请拨打售楼处电话咨询,售楼处电话:400-998-7704。
已有324人报名参加团购
对买房有疑问?留下您的手机号码,专业的置业管家将免费为您答疑解惑。