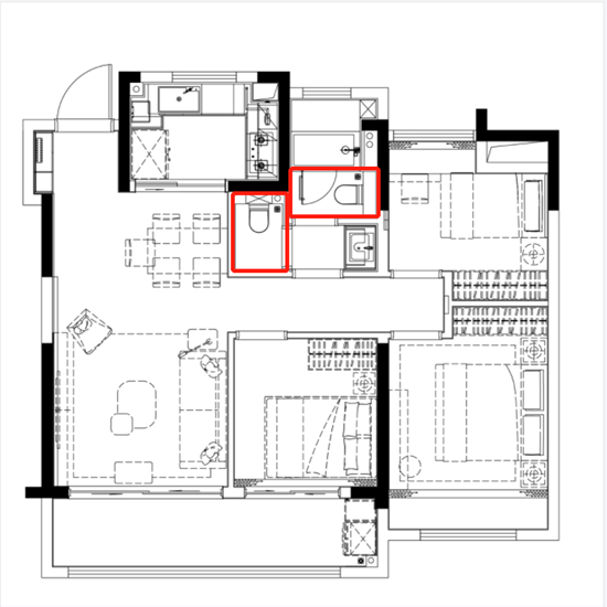
海信慧园在户型设计上打造了建面约89、107㎡创新型户型!户型样板间已开放。户型都相当不错。特别是其建面约89㎡的A户型,创新性地做成“1.5卫”。

建面约89㎡的A户型,直击刚需居住痛点,创新性地做成“1.5卫”。以“0.5㎡”撬动双卫需求,有效避免家人“抢位”的情况,增加居住舒适度。
虽然是起步户型,但是在居住舒适度上却是一点也不含糊。双阳台、主卧大飘窗的设计都在强调“舒居”这个概念。除了1.5卫的贴心设计,89㎡的卫生间里还配置了暖气片,和地暖连通,打开地暖即便是寒冬卫生间也不会感到丝毫寒意。

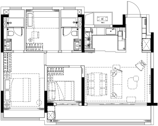
建面约107㎡户型,则在尺度上更进一步。充分满足首改客户的居住需求:三室两厅两卫;动静分区,户型方正;宽厅设计,客厅开间约5.4米。这款户型的阳台更是尺度惊人!阳台进深约1.5米,宽度达到了约8.3米,堪称是“跑道式”巨幕阳台。
想要了解更多楼盘详情请拨打售楼处电话咨询,售楼处电话:400-998-7704。
已有324人报名参加团购
对买房有疑问?留下您的手机号码,专业的置业管家将免费为您答疑解惑。